Additional information
| Style | Standard Cabin |
|---|---|
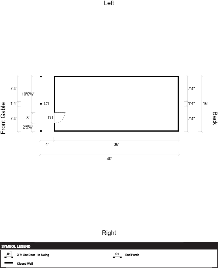
| Size | 16×40 |
| Wall Height | 7' 9.5" Sidewall Height |
| Roof Pitch | Standard |
| Siding Color | Dark Blue |
| Siding Material | LAP (LP Smartsiding) |
| Trim Color | White |
| Roof Color | Galvalume |
| Roof Material | Metal Roof |
| Doors | 3' 9-Lite Door – In Swing, Hinges Left |
| Vents | Standard Vent |
| Porch | End Porch |
| Flooring | Heavy duty floor (12" center floor) |






Reviews
There are no reviews yet.