Additional information
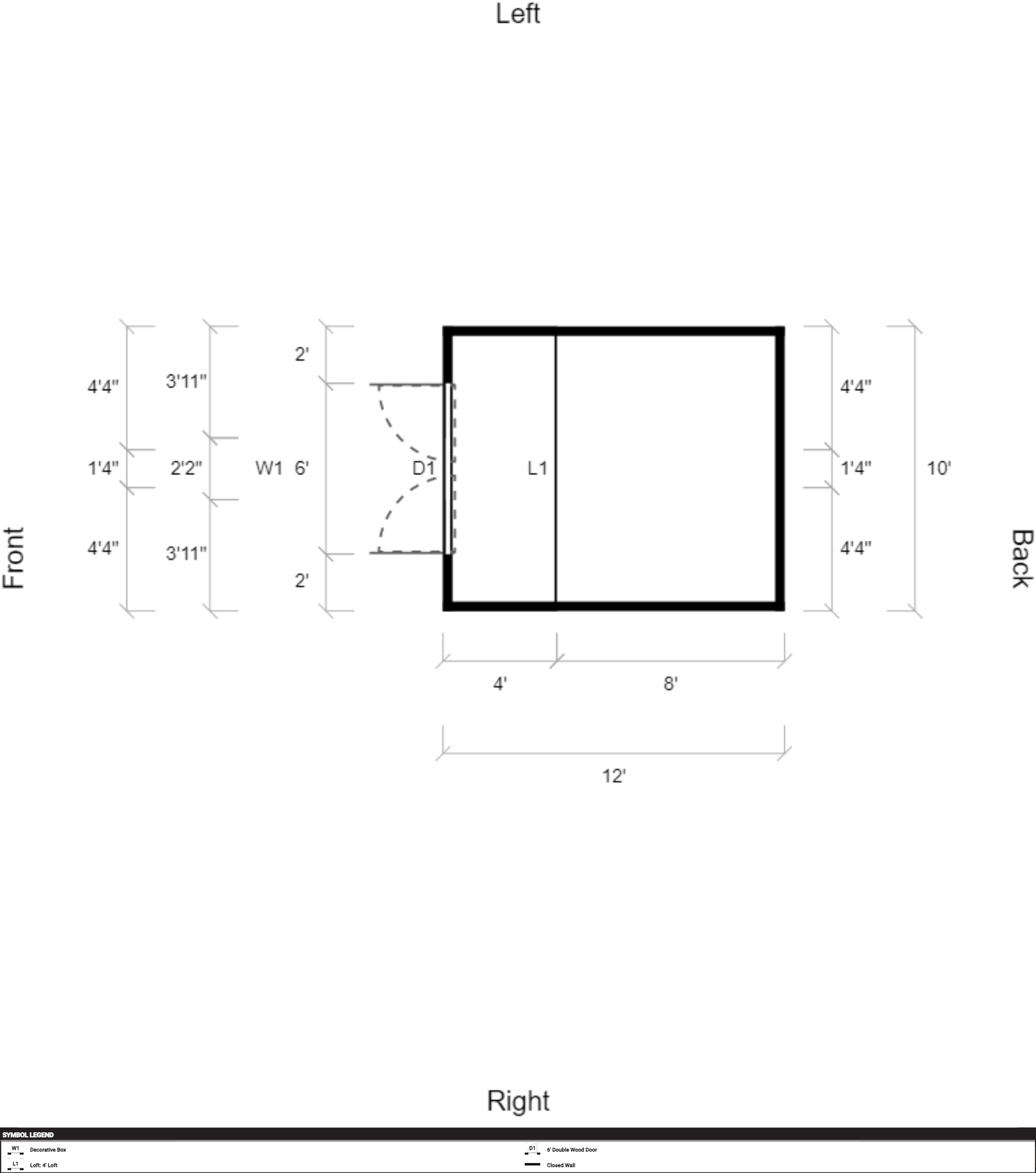
| Style | Lofted Barn |
|---|---|
| Size | 10×12 |
| Wall Height | 6' 7.5" Sidewall Height |
| Roof Pitch | Standard |
| Siding Color | Dark Blue |
| Siding Material | Painted (LP Smartsiding) |
| Trim Color | White |
| Roof Color | Old Town Gray |
| Roof Material | Metal Roof |
| Windows | Decorative Box |
| Doors | 6' Double Wood Door |
| Vents | Standard Vent |






Reviews
There are no reviews yet.