Additional information
| Style | Garden Shed Economy |
|---|---|
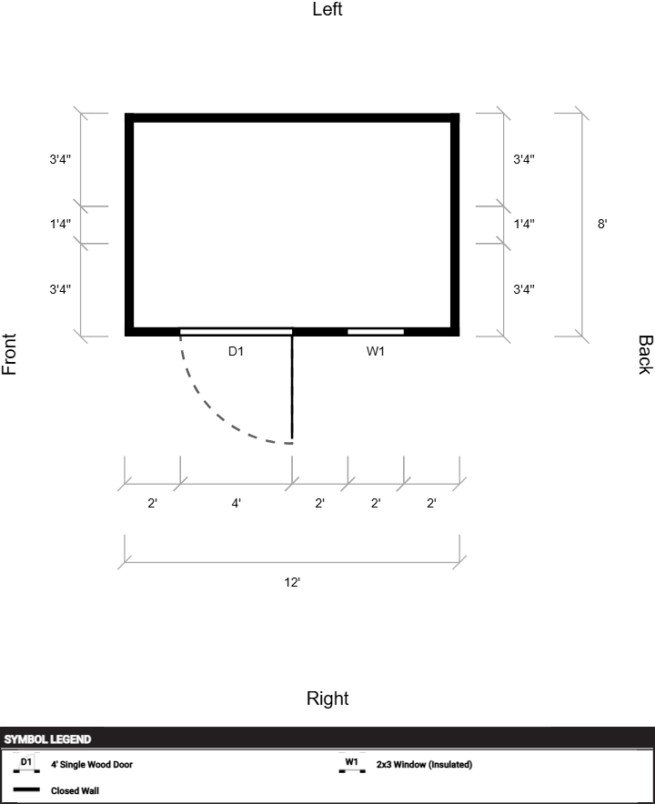
| Size | 8×12 |
| Wall Height | 6' 5" Sidewall Height |
| Roof Pitch | Standard |
| Siding Color | Almond |
| Siding Material | Painted (LP Smartsiding) |
| Trim Color | White |
| Roof Color | Charcoal Gray |
| Roof Material | Metal Roof |
| Windows | 2×3 Window (Insulated) |
| Doors | 4' Single Wood Door, Hinges Right |
| Vents | Standard Vent |






Reviews
There are no reviews yet.